top of page
Create Your First Project
Start adding your projects to your portfolio. Click on "Manage Projects" to get started
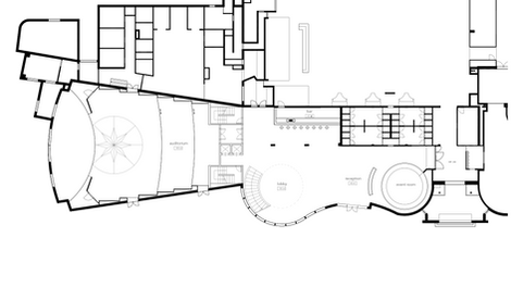
Hotel Chaudfontaine
Location
Chaudfontaine, Belgium
Date
2018
Type
Hotel
Status
Conception
This project was developed in 2018 as a preliminary design for a hotel adjacent to the Grand Casino of Chaudfontaine. The proposal explores how a new hospitality building could be integrated into the existing structure while maintaining a strong connection to the surrounding landscape.
The design preserves the original building and introduces a new volume above it, creating a dialogue between old and new architecture.










bottom of page


